Zainteresował Was ten artykuł? Zakładam, że jeśli tak, to albo planujecie lub zakupiliście swoje nowe mieszkanie czy dom albo chcielibyście wyremontować te wnętrze, w którym mieszkacie obecnie. Tak czy inaczej przychodzę z pomocą przedstawić dokładnie jak wygląda mój Projekt Wnętrz na czym polega i co zawiera.
Jak Projektant tworzy Projekt Wnętrz?
Jako Projektant Wnętrz opisałam po kolei czynności, jakie wykonuję przy współdziałaniu z moimi Klientami. Proszę o przeczytanie, każdego kto jest zainteresowany moją usługą.
W tym artykule przedstawię Wam MÓJ PROCES PROJEKTOWY a także czy działam na różnych rodzajach projektów czy nie. Omówię kwestie:
- Jakie INFORMACJE I DOKUMENTY są potrzebne, abym mogła rozpocząć współpracę z Wami?
- Ile CZASU trwa przygotowanie projektu?
- Ile macie możliwości POPRAWEK?
- Jaką DOKUMENTACJĘ PROJEKTOWĄ otrzymacie?
Na wstępie uprzedzę, że każde biuro projektowe może działać na swoich zasadach. Tutaj przedstawiam mój proces projektowy, który wypracowałam w swojej pracowni. Działam w określony sposób. Tak, tworzę wizualizacje 3D do każdego pomieszczenia, ale przy projektowaniu bardzo mocno jednak zwracam uwagę na realne materiały. Tworzę zestawienia kolorystyczno – stylistyczne, wykorzystując zebrane próbniki, wzorniki od firm, z którymi współpracuję. Nie wybrażam sobie działania na samych wizualizacjach i zdjęciach produktów z internetu, ponieważ potem w realu możemy zobaczyć pewne rozbierzności. Zatem, jeśli przymierzacie się do skorzystania z moich usług projektowych, to dowiecie się tutaj o wielu ciekawych kwestiach.
KAŻDY PROJEKT, który prowadzę dzielę na KILKA ETAPÓW. Staram się tego pilnować, ponieważ usprawnia to cały proces. Mi jest łatwiej działać, a także wy wiecie czego się spodziewać i co oczekiwać. Oczywiście każdy projekt jest inny, jeden tyczy się nowo wybudowanego mieszkania czy domu, inny remontu mieszkania czy domu, a inny jeszcze pojedynczego pomieszczenia. Jedno jednak jest pewne, każdy projekt wnętrz zawiera te etapy projektowe, które omawiam poniżej, zwłaszcza te początkowe.
ETAP WSTĘPNY
Projekt Wnętrz – Ofertowanie
1. Zapytanie od Klienta o Projekt Wnętrz
Każda rozmowa o Projekt rozpoczyna się od ZAPYTANIE O OFERTĘ od Klienta. Wiem, że poruszacie szczegółowe kwestie projektowe już na wstępie w rozmowie z Projektantem Wnętrz. Na pewno dobrze jest porozmawiać na luzie o wizji na wnętrze, stylu, czy w ogóle będziemy mieć połączenie między sobą, czy działamy na tych samych ‚falach’. Jeśli chodzi o mnie to zapewniam Was, że wszystkie aspekty, które chcecie już poruszyć na wstępie wezmę pod uwagę i dostosuję się do nich przy projektowaniu wnętrz.
Podczas wstępnej rozmowy jednak (jeszcze przed podpisaniem umowy) bardzo ważne jest, aby ustalić podstawowe kwestie:
- Czy pasuje Wam cena jaką proponuję za projekt?
- Czy mam wolny termin na wykonanie dla Was projektu?
- Czy zdąże wykonać projekt do terminu, na którym Wam zależy?
Co w sytuacji kiedy za chwilę na budowę wchodzi Ekipa Wykonawcza, czy Elektryk?
Dobrego Projektu Wnętrz wraz z Dokumentacją Techniczną nie da się zrobić w tydzień, czy dwa, nawet jeśli się to tyczy jednego pomieszczenia. W szczególności mam na myśli Projekt kuchni, czy Projekt łazienki. Uprzedzę też, że zgłaszanie się o Projekt Wnętrz w sytuacji, kiedy za kilka dni wchodzi Elektryk jest dla Projektanta dużym utrudnieniem. Musi on rozpocząć projekt od szybkiego pomysłu rozmieszczenia wyposażenia wnętrz, tak aby szybciej wykonać Projekt i obmiar instalacji elektrycznej. W późniejszym etapie jednak może się to wiązać z przeróbkami, przeniesieniem gniazdek, czy włączników. W Projekcie kiedy ustawimy wszystko dokładnie, może się okazać, że nie pasuje nam do końca usytuowanie osprzętu elektrycznego. Każda przeróbka wiąże się potem z dodatkową opłatą dla Elektryka..
Gdzie napisać Zapytanie o Ofertę?
Ważną dla mnie sprawą jest także przeniesienie wszelkich Waszych zapytań facebookowych i instagramowych na wiadomość e-mail. Usprawni nam komunikację, a także zapewni ważność podejmowanej współpracy. Adres e-mail na jaki kieruje moich przyszłych Klientów i wszelkie współprace biznesowe to: pracowniainteriordesign@decoriastudio.com
Co taki mail powinien zawierać?
1. Imię i nazwisko, nr telefonu. Dobrze jest dopisać numer telefonu, ponieważ, kiedy zadzwonię łatwiej już na wstępnie nawiązać pewną nic porozumienia i zapytać o istotne kwestie.
2. Napiszcie, który PAKIET PROJEKTOWY wybieracie. Poniżej opisałam gdzie one są wymienione.

Kiedy wejdziecie na moją stronę internetową na górze pojawi się GŁÓWNE MENU. Z głównego adresu strony www.decoriastudio.com (link do strony główniej >>>) po pojawieniu się strony należy zjechać trochę niżej. W bardziej widoczny sposób na górnym białym pasku pojawią się zakładki. W zakładce OFERTA przedstawiam mój zakres prac w postaci wspomnianych wyżej PAKIETÓW PROJEKTOWYCH (link do oferty >>>).
Możecie tam przeczytać co zawiera dokładnie poszczególny pakiet.
MOJE PAKIETY po krótce:
- PAKIET PROJEKT KOMPLEKSOWY (koncepcje projektowe, układ funkcjonalny 2D, wizualizacje poglądowe 3D + lista zakupowa + dokumentacja techniczna)
- PAKIET PROJEKT KOMPLEKSOWY + NADZÓR NA BUDOWIE (pakiet rozszerzony dodatkowo o nadzór autorski na budowie)
3. Często jest tak, że przy Projekcie mieszkania czy Projekcie domu nie chcecie projektować każdego pomieszczenia. Ważne jest wtedy zaznaczenie, jakie pomieszczenia mam wziąć pod uwagę.
4. To co jest bardzo ważne – prześlijcie mi proszę rzut/plan pomieszczeń z wymiarami i informacją czy to nowo budowany obiekt czy remont istniejącego. Zazwyczaj jest to w wersji papierowej. Jeśli macie możliwość przesłania rzutu/planu w wersji elektronicznej w pliku z końcówka .dwg to jeszcze lepiej.
5. Napiszcie, gdzie znajduje się Wasze (w budowie czy istniejące) mieszkanie/ dom, abym wiedziała z jakiej części Polski jesteście.
6. Na koniec napiszcie wstępnie jaki styl lubicie, w jakim chcielibyście, aby Wasze wnętrze było zaprojektowane. Jeśli posiadacie swoje inspiracje prześlijcie koniecznie lub podeślijcie link/linki. Już na wstępie będę wiedziała, w którym kierunku stylistycznym mam podążać.
2. Moja Oferta na Projekt Wnętrz

Po otrzymaniu zapytania od Was przygotowuję OFERTĘ i w odpowiedzi przesyłam ją mailowo. Oferty staram się na bierząco wykonywać. Powinniście ją otrzymać do trzech dni roboczych.
Jaka jest moja cena za Projekt Wnętrz?
Z racji, że podejmuję się projektów przynajmniej dwóch pomieszczeń, cenę wyliczam z ilości projektowanych przestrzeni lub z ilości m2. Zwrócenie się z prośbą o wycenę uwzględniłam w mojej Ofercie usług (link do oferty >>>). Wyliczanie Projektu wiąże się z ilością pomieszczeń i różną specyfikacją projektową dla każdego wnętrza. Na ogół przy Projekcie Kuchni, czy Łazienki jest najwięcej pracy projektowej. Są to dwa pomieszczenia wymagające większej uwagi, ze względu na instalacje wodno-kanalizacyjne, elektryczne, większą różnorodność materiałów, produktów wykończenia wnętrz. Ponadto, jeśli mamy większą ilość małych pokoi na mniejszej powierzchni, powoduje, że koszty rozkładają się inaczej. Każde pomieszczenie musi być dokładnie zaprojektowanie. Tyle samo pracy może kosztować duża sypialnia i malutki pokój dla dziecka, a czasem ten pokój dla dziecka kosztuje więcej zaangażowania ze względu na dłuższe zastanowienie się nad funkcjonalnym rozplanowaniem małej powierzchni i wykonanie np. zabudów na wymiar tak samo jak w dużej sypialni.
3. Termin wykonania Projektu Wnętrz
W momencie otrzymania od Was zapytania od razu sprawdzam pierwszy możliwy TERMIN rozpoczęcia realizacji Projektu Wnętrz. Czasem bywa tak, że mam wolny termin od razu, jeśli jestem na końcówce poprzedniego projektu. Czasem jednak jest tak, że trzeba poczekać około 1-4 miesiące od daty pierwszego kontaktu.
Z OFERTY, którą do Was wysyłam dowiecie się:
- Ile kosztuje Projekt Wnętrz?
- Kiedy rozpocznę pracę nad Projektem.
- Jaki jest czas wykonania Projektu.
Terminowe wykonywanie pracy jest dla mnie bardzo ważne. Cenię mój czas, a tym bardziej cenię Wasz. Dlatego staram się trzymać zaplanowanej organizacji pracy, aby ułatwić sobie i Wam.
Zwróćcie proszę UWAGĘ na ważność oferty, którą do Was przesyłam. Zazwyczaj jest ona ważna przez 14 dni. Jeśli przetrzymacie ją dłużej bez żadej informacji zwrotnej to termin rozpoczęcia i ukończenia prac projektowych może się przesunąć.
4. Negocjacje & akceptacja Oferty
Jeśli Oferta i Cena Wam odpowiada, proszę o wiadomość mailową z akceptacją (w odpowiedzi na maila z ofertą). W sytuacji, kiedy w ofercie jest coś nie jasne, mało zrozumiałe oczywiście wyjaśnię. Istnieje też możliwość zmian w ofercie, proszę tylko o informację. Zawsze staram się dostosować do Klienta. Gdyby się okazało, że jednak nie zdecydujecie się na współpracę ze mną, będę wdzięczna także za wiadomość z podaniem powodu. Zawsze wyciągam wnioski i przy kolejnych ofertach biorę to pod uwagę i weryfikuję kolejne oferty.
Projekt Wnętrz – Podpisanie Umowy
5. Umowa na wykonanie Projektu Wnętrz do wglądu
Po zaakceptowaniu oferty przechodzę do przygotowania dla Was UMOWY, w której zawarte są wszystkie formalności. Przesyłam ją Wam w postaci Draftu Umowy. Jeśli macie pytania, proszę napisać na pewno odpowiem i wyjaśnię.
UMOWA zawiera takie informacje jak:
- Czego dotyczy Umowa
- Podział na etapy pracy projektowej
- Terminy wykonania każdego etapu wraz z płatnościami na każdy etap
- Odpowiedzialność Projektanta
- Obowiązki Zamawiającego
- Prawa autorskie
- Rozwiązanie Umowy.

6. Podpisanie Umowy
Jeśli Inwestor i Projektant akceptują treść umowy to podpisujemy ją. Zazwyczaj załatwiamy to mailowo poprzez podpisy (wraz z parafkami na każdej ze stron), skan i odesłanie. Najpierw Wy, potem ja wykonuję to samo i odsyłam do Was. Jest także możliwość podpisania umowy osobiście na spotkaniu.
7. Zadatek & rezerwacja terminu
W Umowie jest również zawarta ważna wiadomość odnośnie zadatku na wykonanie Projektu Wnętrz. Zazwyczaj jest to jedna trzecia wartości całkowitego projektu. Jednak jest też możliwość ustalenia innej kwoty zadatku. Proszę wtedy o informację i uzgadniamy to indywidualnie. Po podpisaniu Umowy i otrzymaniu zadatku zapisuję wykonanie Projektu Wnętrz dla Was w kalendarzu i przechodzimy do kolejnego etapu.
ETAP I
Projektowanie Wnętrz – od czego zacząć?
8. Formularz z pytaniami
Po podpisaniu Umowy otrzymujecie ode mnie maila z dostępem do FORMULARZA Z PYTANIAMI online. Wasze odpowiedzi są dla mnie WYTYCZNYMI PROJEKTOWYMI, które są niezbędne do stworzenia Projektu Wnętrz. Na samym wstępie jest ujęta krótka instrukcja, jak go wypełnić. To nic trudnego, nie ma co się obawiać :).

Po zjechaniu niżej pojawi się przycisk „dalej”, który będzie Was kierował do kolejnych pytań. Formularz zawiera nie tylko pytania ogólne odnośnie całego Projektu Wnętrz, ale także podzielony jest na poszczególne pomieszczenia osobno, takie jak: WIATROŁAP, KUCHNIA, ŁAZIENKA/ ŁAZIENKI, SALON (+ JADALNIA), SYPIALNIA, GABINET/POKÓJ DLA GOŚCI, POKÓJ DZIECIĘCY (DLA DZIECKA 1), POKÓJ DZIECIĘCY (DLA DZIECKA 2), BUDŻET, UWAGI. Jeśli, któryś z pokoi Was nie dotyczy zostawiacie puste pola. Z racji, że kuchnia i łazienka są najbardziej wymagającymi pomieszczeniami pytania podzielone są na: Styl życia i przyzwyczajenia mieszkańców, Zabudowa meblowa, ściany, podłoga, Wyposażenie.
9. Panel Klienta z Projektem Wnętrz
W trakcie otrzymania dostępu do formularza z pytaniami otrzymujecie także dostęp do PANELU KLIENTA na platformie FORMLY. Jest to platforma, na której będziemy komunikować się między sobą odnośnie projektu. Ja będę podsyłała dokumentację, Wy będziecie mogli dodawać komentarze, oznaczając konkretne miejsca na wizualizacjach, rysunkach itp. Dostęp otrzymujecie za pomocą linku wysłanego od platformy FORMLY w oddzielnej wiadomości. Link bezpośrednio kieruje Was na FOLDER PROJEKTU.

Jak działa FORMLY?
FORLMY jest narzędziem komunikacji między Projektantem, a Inwestorem. Platforma daje możliwość prezentowania i przechowywania dokumentów, dotyczących danego projektu z możliwością ich komentowania. Jest pomocnym narzędziem w trakcie całego procesu projektowego przesyłania inspiracji, organizacji dokumentów i rysunków, kontrola kolejnych wersji rysunków powstających chronologicznie.
Dzięki FORMLY nie musimy wymieniać się tysiącami maili, które mogą gdzieś po drodze zaginąć, ale mamy wszystko w jednym folderze. Każdy Klient ma swój indywidualny dostęp. Klienci chwają sobie komunikację przez tą platformę, bo naprawdę ułatwia to współpracę. Umieszczam tam nie tylko WIZUALIZACJE 3D, ale także całą DOKUMENTACJĘ TECHNICZNĄ, do której łatwo jest potem wrócić w czasie wykańczania wnętrza, czy remontu. Dzięki temu mamy porządek podczas całego projektu projektowego. Nie ma wtedy problemu z pisaniem maili z zapytaniami, gdzie jest dany rysunek, bo wszystko mamy w jednym folderze.
Jak wygląda panel na FORMLY?
Po kliknięciu w link przesłany na maila dostajecie się do platformy z Waszym FOLDEREM PROJEKTU. Folder zawiera w sobie poszczególne zakładki takie jak: AKTYWNOŚCI, MATERIAŁY, INSPIRACJE, NOTATKI, KOMENTARZE, KOSZTORYS, PLIKI. Korzystamy z tych, które pokazuję poniżej.
Inspiracje to miejsce, gdzie na wstępie proszę Was o podesłanie Waszych inspiracji, stylu wnętrza, preferowanej kolorystyki we wnętrzu, ewentualnie zabudów, elementów wyposażenia wnętrz, które Wam się podobają. Na etapie ustalania wytycznych projektowych również ja wyszukuje inspiracje do projektu wnętrza i także umieszczam je w tym folderze. Każde zdjęcie umieszczone jest w zakładce, odnoszące się do konkretnego pomieszczenia.

Materiały to miejsce, gdzie znajdują się wszystkie materiały dotyczące projektowanych wnętrz podesłanie przeze mnie. Wizualizacje 3D czy rysunki umieszczone są w zakładkach, które odnoszą się do konkretnego pomieszczenia lub działu w procesie projektowym.

Komentarze to miejsce spisu wszystkich komentarzy zarówno moich jak i Waszych. To są te komentarze, które są udzielane do poszczególnej wizualizacji 3D.
Poniżej przestawiam jak wygląda komentowanie danej wizualizacji 3D. Najeżdżając na rysunek 3D pojawia się plusik i komunikat: „oznacz komentarz”. Dzięki temu w łatwy sposób możemy dodawać komentarze na poszczególne elementy we wnętrzu. Komentarze pojawiają się po prawej stronie pod daną cyferką.

Pliki to miejsce spisu wszystkich przesłanych przeze mnie dokumentów, dotyczących Projektu Wnętrz.

10. Wytyczne projektowe
Po wypełnieniu formularza z pytaniami i zapoznaniu się z platformą Formly przez Was umawiamy się na spotkanie konsultacyjne (odbywa się online w wybranym dniu roboczym, po wcześniejszym umówieniu się na wybrany termin). Po tym spotkaniu i doprecyzowaniu indywidualnie wszystkich kryteriów, które mam wziąć pod uwagę podczas projektowania przygotowuję BRIEF, a to nic innego jak spisane WYTYCZNE PROJEKTOWE. Przygotowany dokument zawiera wszystkie ważne informacje, jakie mam wziąć pod uwagę przy zaprojektowaniu wnętrz dla Was. Kolejno przesyłam go oczywiście na Formly.

11. Inwentaryzacja
W kolejnym etapie przygotowuję INWENTARYZACJĘ. Jest to rysunek, który pokazuje istniejący stan obiektu. Jeśli jest to stan deweloperski, czyli nowo wybudowany obiekt, wtedy rysunek przedstawia rzut pomieszczeń, odzwierciedlający rysunki konstrukcyjne. Kiedy mam do czynienia z istniejącymi już pomieszczeniami w surowym stanie czy do remontu zawsze staram się pojechać na budowę i wykonać jeszcze pewne ważne dla mnie pomiary poszczególnych wysokości, odległości w konkretnych miejscach, aby mieć pewność. Rzadko się zdarza, żeby wszystko to co jest na rzucie podesłanym od Was zgadza się z rzeczywistością.
Projekt Wnętrz – Układ funkcjonalny 2D
12. Koncepcje projektowe
Na etapie KONCEPCJI PROJEKTOWYCH rozpoczyna się moje projektowanie wnętrz. Znikam na kilka dni, aby popracować nad każdym pomieszczeniem, poszukać ciekawych rozwiązań, znaleźć nowe pomysły. Po mojej „burzy mózgów” otrzymujecie ode mnie na ogół KONCEPCJE w jednym lub dwóch wariantach dla danego wnętrza. Ilość koncepcji uzależniona jest od możliwości danej nieruchomości. Są to rzuty z góry rozplanowania poszczególnych elementów wyposażenia wnętrz, ustawienia ich w pomieszczeniach względem siebie. Na etapie koncepcji projektowych umawiany się na spotkanie konsultacyjne (wyznaczamy jeden dzień roboczy, po wcześniejszym umówieniu się na wybrany termin). Wspólnie omawiany wszystko. Bardzo często na spotkaniu pokazuję już na podstawie moich próbek wstępne materiały wykończeniowe. Przedstawiam Wam zestawienia podłóg, frontów, tkanin, listew, kolorów farb itp. po to, abyście mogli spojrzeć na kolorystykę i wstępnie na coś się już nakierować.

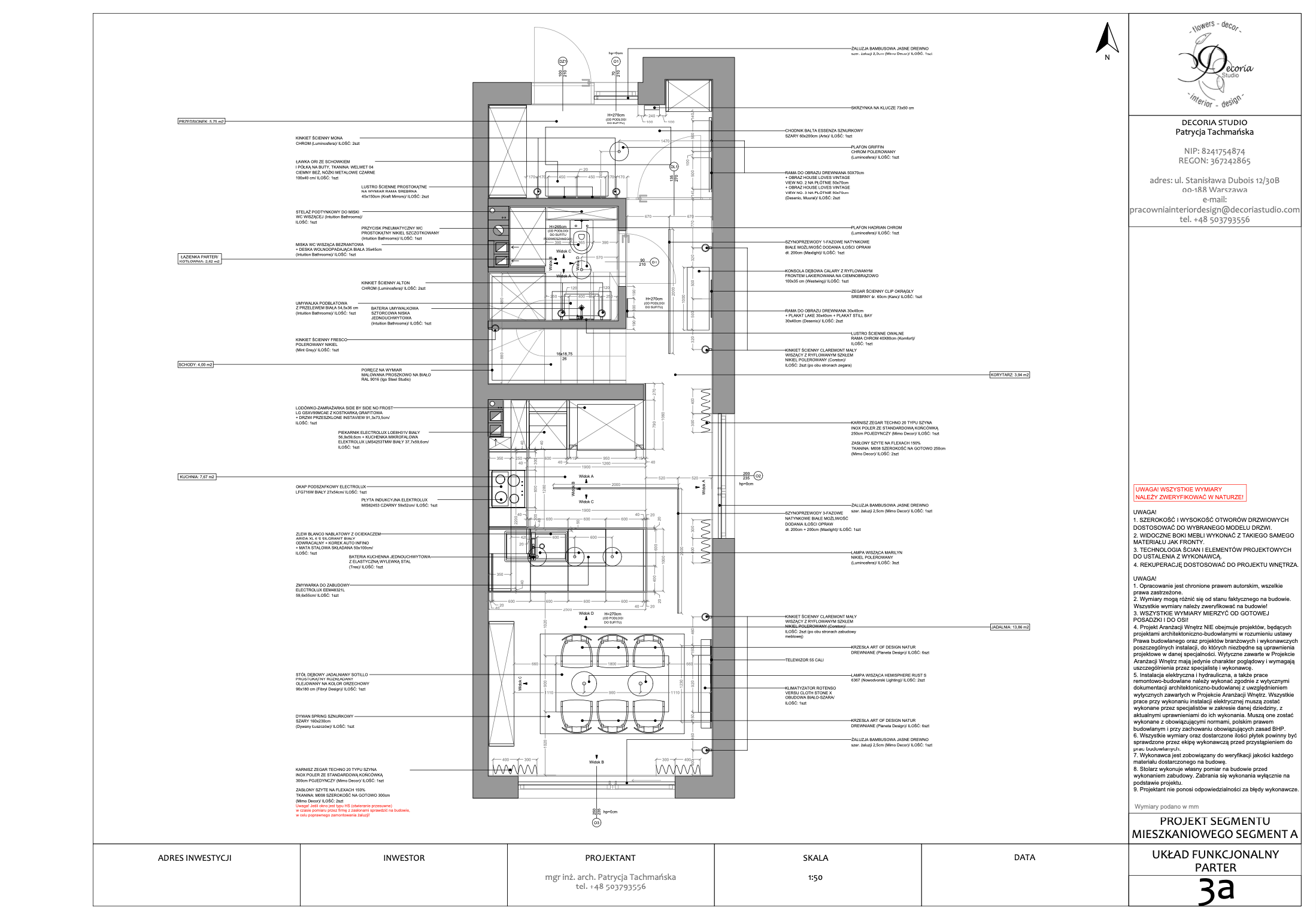
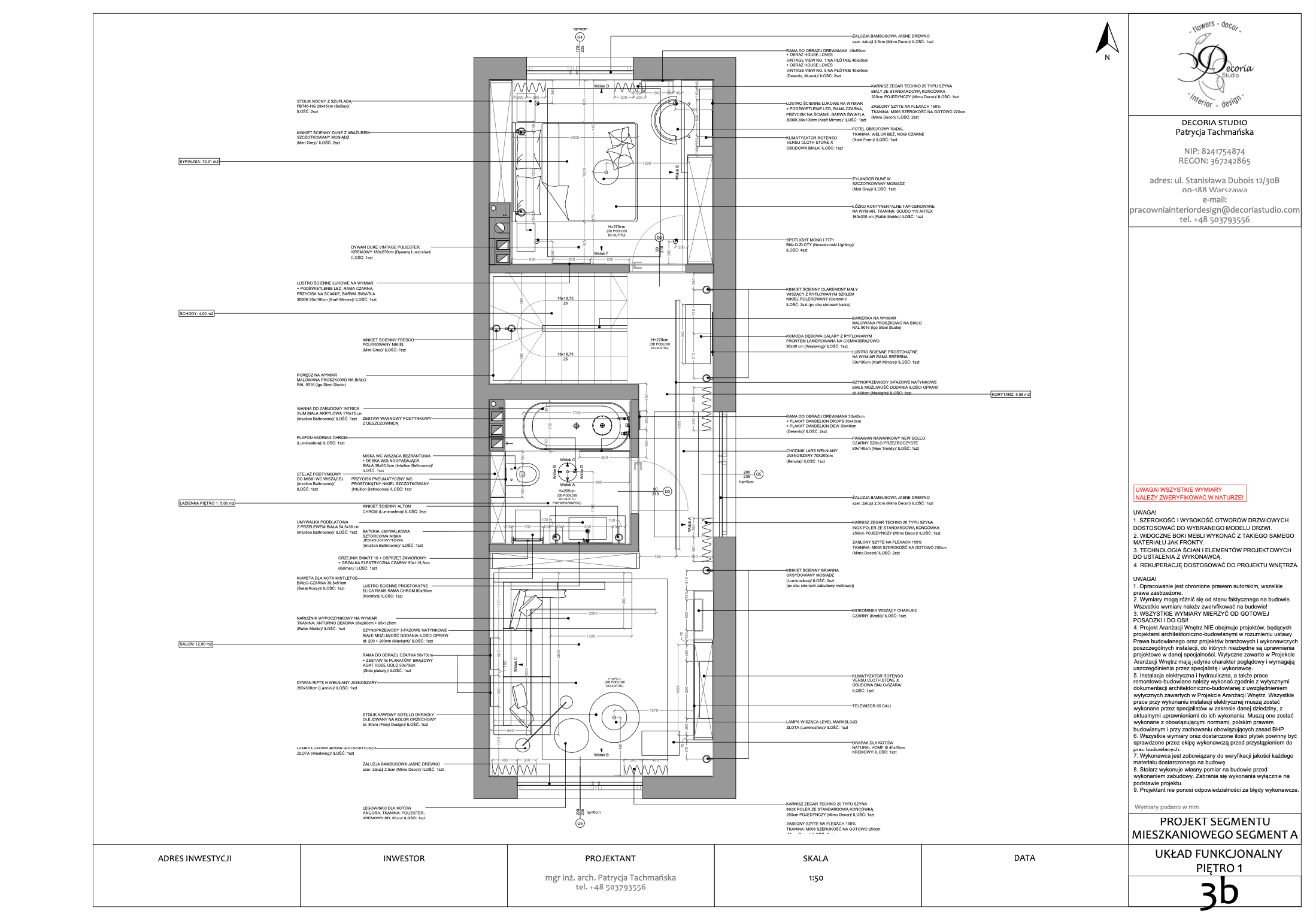
13. Układ funkcjonalny 2D
Po wspólnych konsultacjach nanoszę poprawki i tworzę PROJEKT WNĘTRZ w formie UKŁADU FUNKCJONALNEGO 2D. Jest nim rzut z góry wszystkich pomieszczeń z zaakceptowanym układem rozmieszczenia wszystkich elementów wyposażenia wnętrz. Na Formly przesyłam Wam wykonany układ do zatwierdzenia. Jeśli wynikną jeszcze jakieś poprawki, zmiany oczywiście je naniosę i prześlę ponownie, jeśli nie to akceptujemy i możemy przejść dalej.


ETAP II
Projekt Wnętrz – Wizualizacje poglądowe 3D
14. Wizualizacje poglądowe 3D
Wiem, że wiele z Was czeka najbardziej na WIZUALIZACJE 3D do Projektu Wnętrz, ponieważ wtedy dopiero jak to widzimy łatwiej jest Wam sobie to wszystko wyobrazić. Rozumiem, dlatego staram się je dokładnie przygotowywać, tak aby jak najbardzej odzwierciedlały zaprojektowaną przestrzeń. Na etapie wizualizacji uwzględniam materiały wykończeniowe wnętrz, które wcześniej wstępnie zaproponowałam na spotkaniu. Na wizualizacjach dodaję także produkty wyposażenia wnętrz, w postaci np. gotowych mebli. Wszystko oczywiście jeszcze komentujemy na FORMLY bezpośrednio przy każdym ujęciu.
15. Poprawki do Projektu Wnętrz
W celu uporządkowania całego procesu projektowego wyznaczyłam JEDNĄ TURĘ POPRAWEK.
Kiedy poprawiamy?
Poprawka 1 na Etapie I: Po wykonaniu przeze mnie Układu funkcjonalnego 2D, który stworzyłam po wspólnych konsultacjach nad koncepcjami projektowymi.
Poprawka 1 na Etapie II: W kolejnych etapie tworzę Wizualizacje poglądowe 3D do Projektu Wnętrz. Przesyłam je na Formly i czekam na następne Wasze komentarze. Po otrzymaniu uwag nanoszę poprawki.
Brak poprawek na Etapie III: Dokumentacja techniczna powstaje na podstawie Projektu aranżacji wnętrz przedstawionego na zaakceptowanych wizualizacjach poglądowych 3D – na tym etapie nie ma możliwości wprowadzania zmian do Projektu aranżacji wnętrz.
Czego dotyczy JEDNA TURA POPRAWEK?
Zastrzegam sobie (tak jak również uwzględniłam to w umowie na Projekt), że zmiany do wizualizacji nie obejmują zmian w ustalonym wcześniej układzie funkcjonalnym 2D. Zmiany do wizualizacji nie obejmują ustaleń zawartych w briefie przeprowadzonym z Inwestorem przed rozpoczęciem prac projektowych. Zmiany nie mogą powodować ponownego wykonania Projektu aranżacji wnętrz, nie mogą obejmować zmiany ustalonej stylistyki wnętrza i powodować odejścia od ustalonych założeń projektowych ustalonych podczas przeprowadzonego spotkania z wytycznymi do Projektu aranżacji wnętrz.
Przykłady wprowadzania zmian:
– Zmiana blatu w kuchni, zmiana stołu w jadalni, zmiana krzeseł w jadalni, zmiana koloru płytek w łazience, zmiana lampy w salonie, zmiana dywanu w sypialni itp.
16. Spotkanie w salonach wnętrzarskich
Jeśli wykonywany przeze mnie Projekt Wnętrz jest na terenie Warszawy lub pod Warszawą zachęcam Was również do spotkania. Spotykamy się wtedy zazwyczaj w moim zaprzyjaźnionym SALONIE WNĘTRZARSKIM (link do salonu >>>). Jeśli starczy nam czasu jedziemy także do drugiego wybranego przeze mnie miejsca. Ja zabieram zawsze przygotowane wcześniej próbki. Na spotkanie przeznaczam jeden dzień roboczy po wcześniejszym umówieniu się na wybrany termin. Resztę materiałów i produktów, które nie zostaną pokazane na spotkaniu przedstawiam w postaci linków do sklepów, gdzie znajdują się adresy tych miejsc. Linki uwzględniam na liście zakupowej przy każdym produkcie użytym w Projekcie.
Jeśli jednak pracujemy online, informuję Was, w którym salonie w Waszej okolicy zobaczycie na żywo wybrane przeze mnie materiały i produkty wyposażenia wnętrz.
Projekt Wnętrz – Kosztorys
17. Lista zakupowa
Kolejnym ważnym etapem w procesie projektowym jest stworzenie LISTY ZAKUPOWEJ. Lista zawiera: Linki do sklepów, ilości, ceny, notatki do materiałów, produktów.
Listę zakupową tworzę go na podstawie cen katalogowych lub wybranych promocji z informacją, że jest to promocja do konkretnego dnia. Listę udostępniam tak, abyście mogli mieć zawsze aktualną wersję po nanoszeniach moich zmian. Poniżej pokazuję fragment takiego Kosztorysu.

ETAP III
Projekt Wnętrz – Dokumentacja Techniczna
18. Rysunki Techniczne
Kolejnych etapem jest wykonanie DOKUMENTACJI TECHNICZNEJ. Tworzę ją zawsze po zaakceptowaniu poprzednich etapów projektowych. Taka dokumentacja składa się z Rysunków:
- Inwentaryzacja
- Układ funkcjonalny
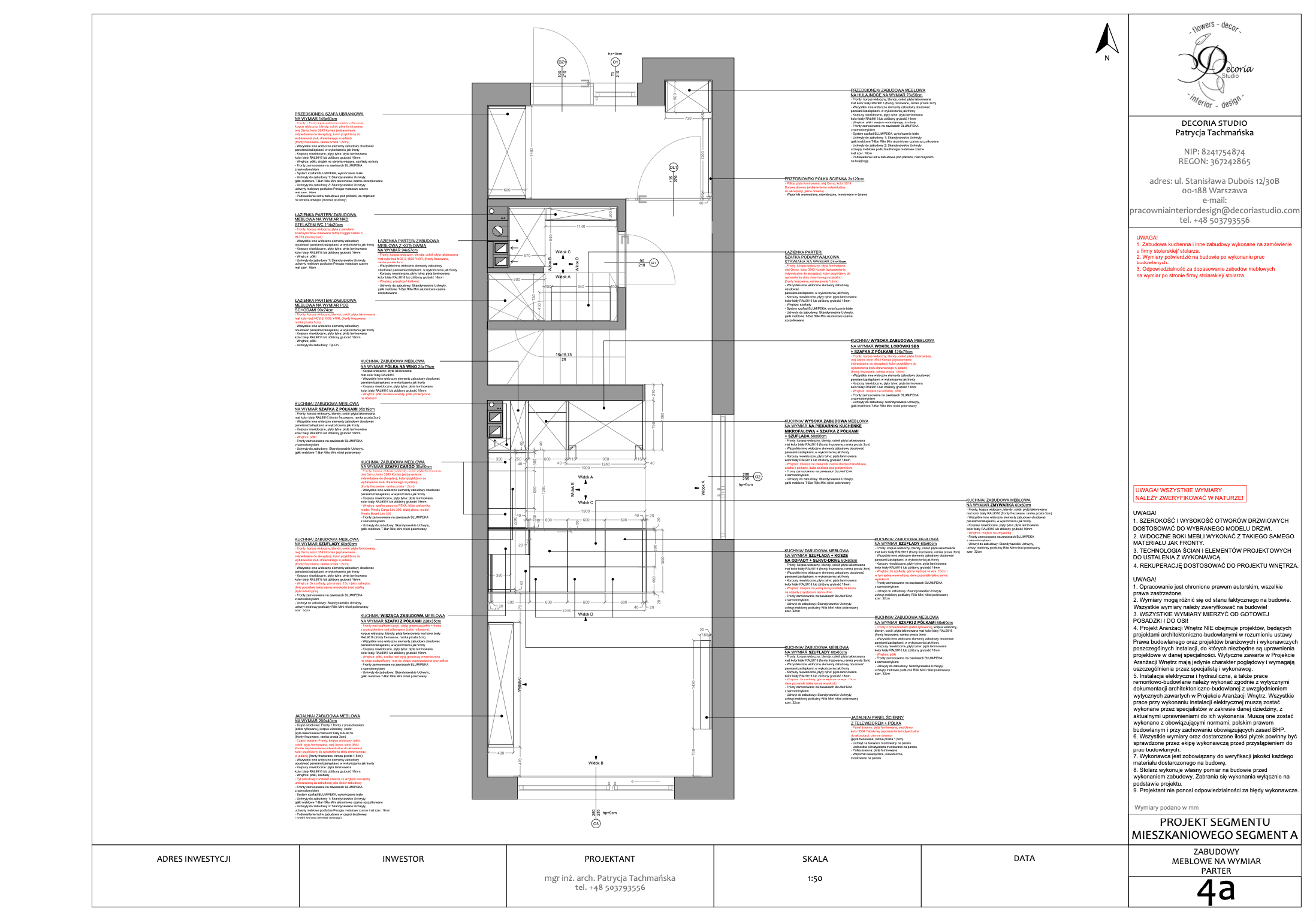
- Zmiany budowlane
- Zabudowy meblowe na wymiar
- Projekt instalacji wodno-kanalizacyjnej
- Projekt instalacji elektrycznej + Obmiar instalacji elektrycznej
Poniżej przedstawiam przykład Projektu instalacji elektrycznej i jej Obmiaru: (dodatkowo na etapie wykonywania projektu instalacji elektrycznej umawiam się z Wami na konsultacje, czy zaproponowana przeze mnie elektryka odpowiada Wam).


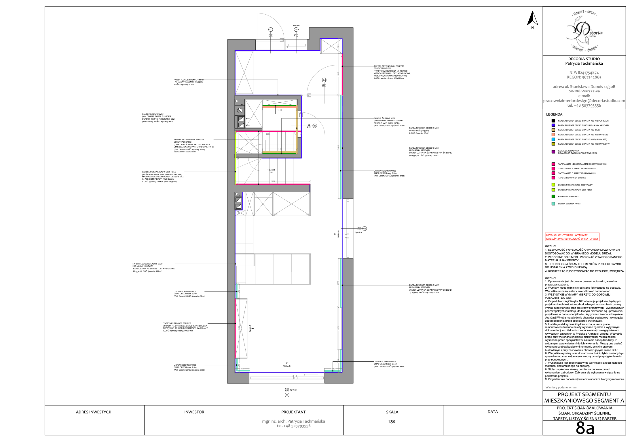
19. Pozostałe Rysunki Techniczne
Następnie tworzę kolejne Rysunki Techniczne, które są niezbędne do wykonania prac wykończeniowych:
- Projekt podłóg
- Projekt ścian
- Projekt ścian – widoki
- Projekt sufitów
- Projekt sufitów podwieszanych
- Projekt kuchni
- Projekt łazienki/ łazienek
- Projekt schodów
- Projekt elementów metalowych loft
- Projekt zabudów meblowych na wymiar – widoki
Poniżej przedstawiam przykład kilku z nich:









Po wykonaniu Dokumentacji Technicznej przesyłam ją oczywiście na nasze Formly. Zazwyczaj jest tak, że przesyłam ją partiami po każdym wykonaniu Rysunków z każdego pomieszczenia.
ETAP IV
Nadzór na budowie do Projektu Wnętrz
Zdarza się również tak, że oprócz Projektu Wnętrz prosicie mnie także o NADZÓR w czasie prac wykończeniowych. Bardzo mnie to cieszy, ponieważ widzę wtedy efekty mojej pracy :)! Często na etapie tworzenia Listy zakupowej pytacie się mnie o Stolarza, Kamieniarza, Zakład Stolarski, Ekipę Wykonawczą itp.. Wtedy mogę Wam polecić z kim ja często współpracuję. Natomiast to od Was zależy, czy chcecie z tych poleceń skorzystać czy nie. Zdarza się też tak, że nadzoruję ekipę, która jest od Was. Spotykam się wtedy z Wykonawcami i omawiamy zakres Projektu Wnętrz. Sprawdzam, czy wszystko wykonane jest zgodnie z Projektem. Jeśli są jakieś pytania ze strony Wykonawców oczywiście wyjaśniam. Jeśli wyniknie jakiś problem razem staramy się go rozwiązać. Na budowie mogą zdarzyć się różne rzeczy, ale da się temu wszystkiemu zaradzić :).
ETAP V
Stylizowanie wnętrza
Jestem ogromnie podekscytowana, kiedy widzę w realu zrealizowany przeze mnie Projekt Wnętrz! Kiedy wszystko jest już ukończone i można zobaczyć to na żywo, dopiero wtedy widać prawdziwą rękę Projektanta :D. Na żywo to jest na żywo! Związku z tym, zawsze pytam się Was, czy mogłabym wykonać stylizację wnętrza wraz z sesją zdjęciową Waszych wnętrz. Tak naprawdę chciałabym zrobić kilka ujęć najważniejszym punktom w zaprojektowanych pomieszczeniach z małą stylizacją wykonaną przeze mnie. Zakupuję wtedy dekoracje uprzednio z Wami to uzgadniając lub wykorzystuję swoje elementy na potrzeby stylizacji i sesji. Mogę wtedy uznać, że Projekt Wnętrz został w pełni wykonany. Taka dokumentacja fotograficzna dla mnie niezwykle pomocne przy kolejnych zleceniach :).
Uff.. i dobrnęliśmy do końca. Tak w ogólnym zarysie wygląda PROJEKTOWANIE WNĘTRZ w mojej pracowni projektowej DECORIA STUDIO.
Nie jest łatwe w jednym artykule opisać cały proces projektowy, który trwa dwa/trzy miesiące lub dłużej. Mimo wszystko zawsze bardzo dziękuję, że to właśnie mi powierzacie Wasze mieszkanie czy dom pod opiekę projektową! Współpraca z Wami to nie tylko projekt, ale także relacja jaka się między nami buduje. Często stoję obok wielu sytuacji, nieporozumień, rozterek, narodzin dzieci.. Tak naprawdę z doświadczenia zauważam, że jestem nie tylko Projektantem Wnętrz, ale także Psychologiem :D. Jak to w życiu.. Jak mogę służę pomocą i rozmową. Ciekawe to jest, że od Projektu tworzy się PRZYJAŹŃ, poruszając tematy o misę WC, wannę, kolory farb na ściany i inne elementy, których na codzień używacie i oglądacie.
Bardzo się cieszę, że do tej pory miałam ciekawe współprace :).
____________________________________________________________________________________________________________________________________________________________________________________________________________________
Jeśli zatem jesteście zainteresowani współpracą zachęcam do napisania wiadomości do mnie na adres: pracowniainteriordesign@decoriastudio.com lub przez Formularz widoczny w zakładce Kontakt (link do formularza >>>) Do usłyszenia.
____________________________________________________________________________________________________________________________________________________________________________________________________________________
SPODOBAŁ SIĘ WAM TEN ARTYKUŁ, UWAŻACIE, ŻE JEST WARTOŚCIOWY? PODZIELCIE SIĘ PROSZĘ SWOJĄ OPINIĄ W KOMENTARZU I PUŚCIE GO DALEJ. NIECH WSPÓŁPRACA Z PROJEKTANTEM WNĘTRZ BĘDZIE CZYSTĄ PRZYJEMNOŚCIĄ! DZIĘKUJĘ : ).